PRONÁJEM LÉKAŘSKÝCH ORDINACÍ
Poliklinika BONATE, Most, J. A. Komenského
cena na vyžádání

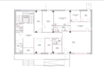
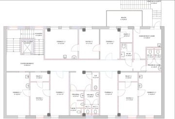
Pronájem ordinací v nově zrekonstruované budově BONATE Polikliniky. Aktuálně jsou zde čtyři volné ordinace, jedna v přízemí, ostatní v patře s výtahem. Všechny ordinace mají samostatnou čekárnu, sesternu , sklad, klimatizaci, je možné je po dohodě dovybavit nebo upravit dle potřeb nového nájemce. Dále je zde zázemí s kuchyňkou pro personál, toalety pro personál a toalety pro hosty. Kolaudováno jako ordinace podle všech hygienických požadavků. Vhodné pro praktické lékaře, dětské lékaře, oční lékaře, specialisty a podobně. Lze pronajmout i jako celek všechny čtyři ordinace. V budově nově sídlí i lékárna Bonate. Pro lékaře lze zařídit parkování na soukromém parkovišti přímo u budovy.
ZÁKLADNÍ INFORMACE
Celková cena:
na vyžádání
Stavba:
smíšená
Stav objektu:
po rekonstrukci
Vlastnictví:
osobní
Užitná plocha:
40 m²/ordinace
Topení:
jiné
Energetická náročnost budovy
D - Méně úsporná
FOTOGALERIE
PŮDORYS


MÁTE ZÁJEM O VÍCE INFORMACÍ?
Stačí zavolat nebo vyplnit formulář, ozvu se Vám ihned, jakmile to bude možné.











